

The World Wide Studio


Our project is evolving, and we’re excited to share the latest milestones we’ve achieved! Here’s a behind-the-scenes look at how we’re bringing this vision to life.

With some delay, this is the evaluation concept of the first three proposals received. We did it a few days ago and concluded that Rano’s proposal was the most suitable, in fact we asked to implement it!
Neapolitan Workshop: A Modern Presepe Studio
Concept: The Neapolitan Workshop is a modern space where the traditional art of creating Neapolitan presepe is combined with innovative technologies and design solutions. It is not just a place of production, but a creative laboratory open to everyone who wants to get acquainted with this art.
Design and atmosphere:
Unique features:
Target audience:
“Neapolitan Workshop” is not just a studio, but a modern cultural center where the traditional Neapolitan art of presepe lives and develops in a new modern environment.
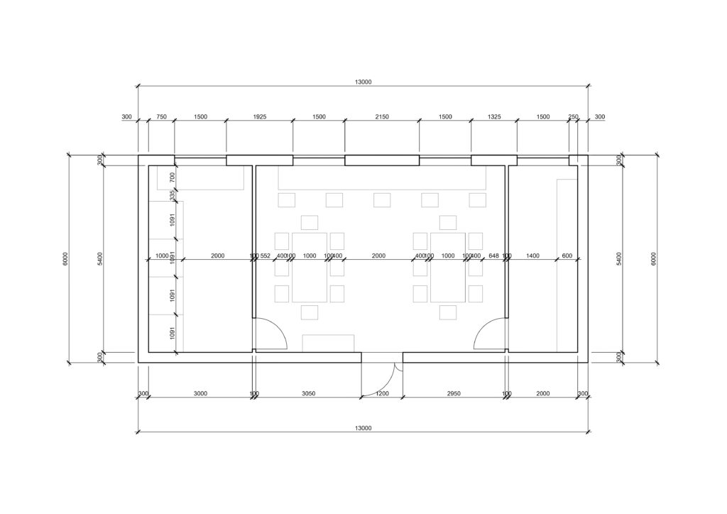
Studio plan
All dimensions in millimeters




Advertising poster

We’ve had a chance to review the latest proposal you posted on your blog. The ideas in all three proposals are undoubtedly creative and interesting, so thank you for the effort and thought you’ve put into them. However, we noticed that the main focus of our brief — designing an advertising campaign to promote a workshop — hasn’t been fully addressed in these proposals.
In particular, we feel that Rano’s design proposal could serve as a great starting point if you could incorporate the requested adjustments to align it more closely with the brief. Let us know if you’d like to move forward with refining this idea together!
With love,
Team 25
Given the refined focus on craftsmanship and the need to preserve the authenticity of the Italian tradition of creating wooden Christmas figurines, and the requirement for a tangible object to facilitate this tradition’s transmission, I propose the following ideas:
These items aim to promote hands-on learning and skill development, making the learning process more accessible and engaging for younger generations while respecting and preserving the tradition.
We have reviewed the proposals, but we believe they do not adequately address the core issue: passing on the tradition of nativity art from artisans to the younger generations.
For example, Rano’s proposal mentions manual work and the use of machines, but the problem lies precisely in the use of technology, which risks compromising the essence of the tradition. It is essential to identify solutions that can attract young people while keeping artisanal craftsmanship at the center.
The uniqueness and distinctiveness of nativity figurines cannot be easily replicated by just anyone, let alone by children in schools. We believe it would be more appropriate to focus on students from art schools or related disciplines, who possess the skills and interest to delve into this type of craftsmanship.
The brief includes structured examples demonstrating how art can be effectively passed down; drawing inspiration from these models could help design a pathway that integrates education, tradition, and craftsmanship, ensuring the continuity and authenticity of this valuable cultural heritage.
“Miniature Masterpieces”:
“Traditional Design Luminaries”:
“Interactive Exhibit”:
“Christmas Figurines as Family Symbols”:
“Christmas Figurines as Gifts”:
“Figurines as Art Elements”:
“Figurines as Interactive Elements”:
“Christmas Quest”:
“Figurines with AR Effects”:
“Figurines with Sound”:
Exploring the Problem
Bringing Together Generations: A Bridge Between Experience and Novelty

Bringing together the younger and older generations is a complex task that requires understanding and compromise on both sides. The interaction between them can be enriching, but it also comes with its own set of challenges.
Challenges:
Solutions:
Connecting the young and old is a key factor for success in the modern world. Through understanding, mutual respect, and joint efforts, we can create a society where everyone can realize their potential and contribute to the common good.
Exploring the Presepe

The Neapolitan Presepe: Magic in the Details
The Neapolitan Presepe is not just a nativity scene, but a whole story in miniature. It preserves the spirit of southern Italy, with its bright colors, rich history and folk traditions.
What is a Neapolitan Presepe?
It is a large, detailed model of the city where the biblical story of the Nativity takes place. But the Presepe is not just a reconstruction of a scene from the Gospel. It includes elements of everyday life in Naples in the 18th and 19th centuries, with its architectural landmarks, characters, animals and even landscapes.
What distinguishes it from other nativity scenes?
Why is the Neapolitan presepe so popular?
Where can you see the Neapolitan presepe?
The Neapolitan presepe is a magical combination of religion, culture and art that continues to fascinate people around the world.
Manual and machine labor: from craft to machine production

The history of mankind is the history of technological development, and with it, a change in paradigms in production. Manual labor, which for centuries was the main way of creating goods, is gradually giving way to machine labor, turning craft into machine production.
Manual labor: traditions and limitations
Transformation of craft:
Impact on society:
Conclusion:
The transition from manual labor to machine tool production is a natural process of technological development. Machine tools give us the opportunity to create cheaper, higher-quality and more affordable goods, but it is important to preserve the traditions and value of manual labor. In the modern world, manual labor and machine tool production can be harmoniously combined, complementing each other and creating products that meet the requirements and tastes of the modern consumer.
My idea
The younger generation is losing interest in the craft of presepe. To return interest to such an incredible craft, I propose to combine modern technology and ancient traditions. Recently, the use of 3D printers has become very popular. Which greatly speeds up the process of creating various figurines. And also helps with the recycling of plastic.
The Neapolitan presepe is a very beautiful and magical creation of intaglio masters. But very often the modern generation neglects the purchase of goods that have a limited number of functions. Therefore, various functions can be added to a modern presepe, such as a smart speaker that can work all year round, or add a light source function, and so on.
My idea is to create a presepe that can be used all year round, changing the theme of the delivery. For example, in winter this is a production of the Nativity of Christ, in spring a production with an Easter plot, in summer – the day of the Italian Republic and in autumn a production for Halloween.
Preserving the tradition
To preserve the tradition, I propose to create a studio for creating prepeze. Recently, ceramics studios, jewelry making, candle making, soap making, etc. have become very popular. Let’s look at the example of a ceramics studio to see why they are popular.
Why are ceramics studios becoming more and more popular?
Ceramics studios are experiencing a real boom in popularity. Previously, it was a hobby for the elite, but now more and more people are reaching for the potter’s wheel and clay. Why is this happening?
Reasons for the growing popularity:
Conclusion:
The popularity of ceramics studios is a reflection of profound changes in modern society: the desire for creativity, the search for an outlet from stress, fatigue from the virtual world, the value of uniqueness and environmental friendliness. Ceramics is art, therapy, hobby and a way of self-expression all in one – that’s what makes it so attractive to a modern person.
The finished product:

Therefore, I propose to create a studio that anyone can come to. The studio should be oriented towards different generations, so that both children and adults can create their own prepeze. Be equipped with modern technologies.
Creating a traditional prepeze is a rather long process, so I propose to speed it up. Therefore, you can create this chain: An experienced master Gennaro can create a figurine from materials familiar to him. Sara, using modern technologies, optimizes the figurine, creates its 3D model, makes it possible to assemble and disassemble it. Then experienced technologists add technical capabilities, such as a speaker, light bulbs, and so on.
Paolo, as a simple client, will be interested in creating a presepe that will be functional
Also, if the studio creates various master classes in schools or kindergartens, this will help to create interest in the younger generation. And it will also be one of the opportunities for their development. After all, children love to assemble various construction sets. This develops their hand motor skills.
The studio space can be rented on one of the city’s shopping streets or streets frequently visited by local residents.

Hello, I’m Liana! I’m 21 years old and from a country where the beautiful melody of the duduk is played, which is the country that first adopted Christianity, and where delicious «tolma» and «zhengyalov hatz » are cooked, along with many other delicious national dishes! This country is Armenia. I live and study in an equally beautiful country – Russia. I’m a third-year student at RUDN University, majoring in “Design of Architectural Environment”. I’ve loved drawing since childhood and always dreamed of becoming an architect. I have a few hobbies – I attend Armenian national dance classes, and when I dance, I feel like my soul is connected to my homeland. In my free time, I’m also interested in sewing and creating bags and purses with traditional Armenian patterns. Although I just started, I’m still learning! I rarely watch movies, but I love all movies featuring Jackie Chan! He’s my favorite actor. As for music, I enjoy all genres, from classical to hip-hop! My favorite singer is Miyagi, and my favorite rapper is Eminem. I really enjoy their work.
Here’s a small story about me – nice to meet you!







My name is Sofia, I am 20 years old and in my third year. I was born and raised in Moscow. This is an
amazing city, there are many attractions and interesting places. The city has a lot of diverse architecture
and art spaces.
I’m into music and drawing. Through my hobby, I can express myself
Telegrams: @sofazlo

Hi!
My name is Rano. My MBTi is INTJ-I. I am 20 years old. My character is very calm. I am friendly and like to make new friends. I was born in one of the beautiful cities of Central Asia, in Tashkent. I want to tell you a little about my homeland.
Tashkent is a very ancient city. It is more than two thousand years old. It stood as a small settlement on the caravan road – the Great Silk Road.
Now Tashkent is the capital of Uzbekistan, an independent state. There is a lot of new things in it, but the heritage of past eras is also preserved. Modern architecture coexists with ancient architecture and coexists with buildings from the Soviet period. I want to invite everyone to visit my homeland


Our traditional food never ceases to amaze all guests of the country. Even living in Russia I miss my national food. If you have the opportunity to visit Uzbekistan, be sure to try our pilaf, manti, shashlik.

I have many different hobbies – reading, watching t-show, but the most important one is dancing. I used to do traditional dances, but as I got older, I started going to modern ones. Hip-hop, dancehall, jazz-funk – those were my first styles. In high school, I fell in love with kpop, so I still have many cover dance projects. My favorite are ATEEZ -Crazy Form(https://youtu.be/kDx8IeWaUUc?si=VFPsKAU5eYFl7mbu) and LE SSERAFIM – SMART(https://youtu.be/MXbinH_dHM4?si=Ht-0rdjYhtUDaWGH). I am also a member of the dance team “Energy Dance” from my university. We often perform at various concerts and festivals.


Knowing that I love cover dance, you can understand that almost my entire playlist is kpop. But I also love rock, in any form. My favorite rock band is Rammstein.
My social media:
Gmail: 21kirano09@gmail.com
Instagram: @21kirano
Discord: @21kirano09
We are receiving a lot of pressure from our teacher and we need to know if you will be participating in this project or not. This is an exam for us, so we need your brief due tomorrow or else we will proceed in another way.
Contact us as soon as possible, thank you.
If you have any questions, feel free to ask questions.
We’re glad to see the first face of your group and look forward to getting to know all of you!
We will wait for your brief as well in order to continue working.
Please contact us so we can meet on a video call and discuss the projects!

I’m 20 years old, currently in my third year studying Design. I graduated from music school and play the violin, piano, guitar, and drums; I love singing and writing poetry. I’m very fond of cats, music, good food, tattoos, and bold makeup. I enjoy dyeing my hair in unique colors—I find natural shades too boring. Something interesting about me is that my birthday is on Christmas, December 25th. I hope we get along well.
my email 89151065586@mail.ru
my Telegram @bombasse
You will upload your profile onto your allocated Design Project site.
Sharing your profile will enable other participating students and lecturers to find out about you. So, make it an interesting read…
The other students might like to know where your hometown is, and what your hobbies are and your future plans after you will graduate. You may like to say something about your favourite design project you have done in the past and share a picture or two. What are your strong skills? Do you have a favourite book, movie or TV series? What is your favourite hiding place where your university is located?
Please remember to include your contact details. It is essential that you list your email! However, it would be also useful to indicate what social media you are using such as WhatsApp, WeChat, Signal, Telegram, Line, Kakao Talk, Skype and so on.
You can always update your profile post, so you do not need to have it perfect in the first go.
Develop a banner for your Design Team. The banner will be used as a Heather for your Design Project Site. The dimensions can be vary from 340x125pixels or 1350 by 270px or 2000x400px
The Designers’ Team Banner needs to include the following:
Examples of the past designers banners are provided on the 2024 Project Master Page. If like you, you can always modify your banners later on.
© 2026 Design Team 19 | The 2024 Global Studio
Theme by Anders Norén — Up ↑